万源市民政局委托******有限公司编制了《万源市公益性骨灰安放堂建设项目方案设计》,已通过专家评审会、二审会、规委会审议,并根据会上提出的意见修改完善。
现将《万源市公益性骨灰安放堂建设项目方案设计》总平图予以公示,希望社会各界提出宝贵意见和建议。******街道秦川社区秦川大道157号)。
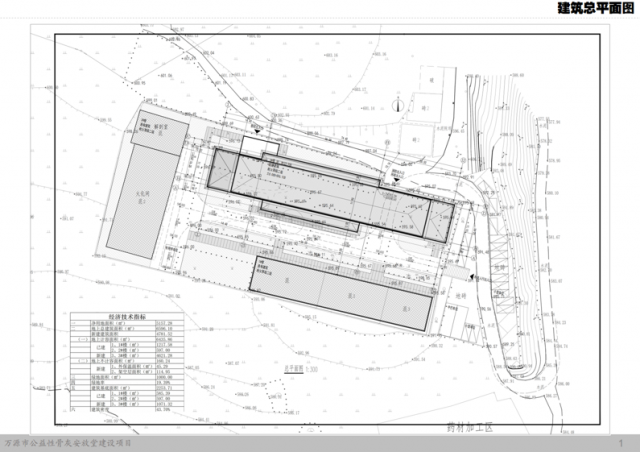
建设内容:用地面积5157.28㎡,总建筑面积6596.10㎡,新建建筑面积4781.52㎡,绿地率19.39%,建筑密度43.70%。
附件:《万源市公益性骨灰安放堂建设项目方案设计》总平图
公 示 期:2025年12月3日-2025年12月12日
******人民政府网
******资源局公示栏、太平镇公益性骨灰安放堂
联系人:林 森 联系电话:******
电子邮箱:******
******资源局
2025年12月2日
